

将来の職場がどのようなものかをご覧ください。代表的なフロアを以下に示しました。
■1階
玄関を入るとまず正面に2基のエレベーター、右手に受付/事務室、ロビーから左側に、地域交流スペース、相談室、デイフロア、浴室が配置されています。職員の出入り口は建物の裏側で、更衣室、厨房、職員食堂などが配置されています。
すばる六甲では靴を履き替えることなく、施設の中に入れるようになっています。

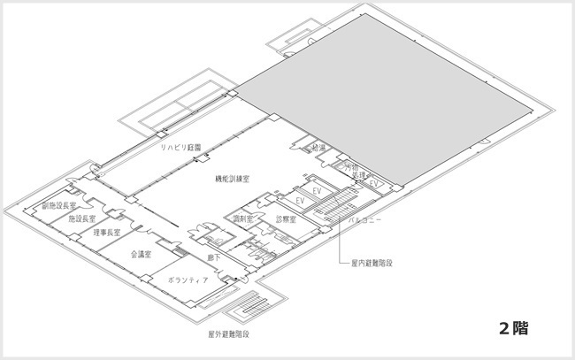
■2階
機能訓練室、リハビリ庭園、診察室、施設長室、応接室、会議室などがあります。
施設サービスの中心となるリハビリは、すばるグループ全体から選抜されたリハビリチームが取り組みます。
リハビリ庭園からの眺めは世界クラスになるでしょう。
右手の塗りつぶした部分は神戸大学工学部の研究室です。

■3〜7階
入所者用フロアです。
キッチンと共同生活スペースを中心に、個室が機能的に配置されています。
十分なモニターカメラを整備して、いつでも利用者の様子を見ることができます。
機械浴槽があるのは3・5階、4・6.7階には職員の休憩室が設けられることになっています。
(将来6階休憩室を機械浴室に改装する計画があります)

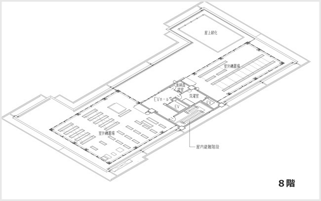
■8階
屋上の一部は花壇になっていて、リハビリの一環として利用者に「花作り・野菜作り」をしていただくことになっています。
お天気の良い日には屋上にあがって、景色を楽しみながら日向ぼっこもできます。

kensetu
皆様がご応募された施設はどのような施設になっていくのか、平成27年6月オープン予定の新施設が完成するまでの様子をご覧いただけます。
※BGMが流れますので、音量を調節してご覧ください。
【電車・バスをご利用の場合】
〒657-0011 兵庫県神戸市灘区鶴甲1丁目23
JR神戸線『六甲道駅』から・・・神戸市バス16番系統『六甲ケーブル下行』乗車 『鶴甲南』停留所で下車徒歩1〜2分
阪急電車『阪急六甲駅』から・・・神戸市バス16番系統『六甲ケーブル下行』乗車 『鶴甲南』停留所で下車徒歩1〜2分
![]() ![]() ![]() |